Étude d’agencement avant achat d’un local pour un cabinet d’orthophonie à Saint-Égrève (38)
Dans le cadre d’un projet d’acquisition d’un local commercial à Saint-Égrève (38), j’ai été sollicité pour réaliser un plan d’implantation sommaire d’un futur cabinet d’orthophonie. Cette démarche préliminaire visait à vérifier la faisabilité de l’aménagement du local, tout en prenant en compte les contraintes liées à l’activité et les normes en vigueur, notamment les normes PMR (personnes à mobilité réduite).
Objectif du projet : un cabinet fonctionnel et conforme aux réglementations
L’enjeu principal de cette mission était de concevoir un espace professionnel qui réponde aux exigences spécifiques d’un cabinet médical tout en respectant les normes d’accessibilité. L’agencement devait permettre l’installation de :
- 5 bureaux, adaptés aux consultations d’orthophonie,
- Une salle d’attente confortable pour accueillir les patients,
- Les commodités nécessaires, comme des sanitaires accessibles.
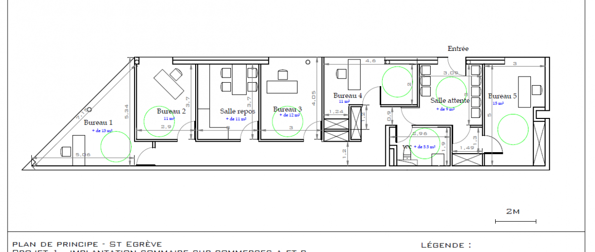
Plan d’implantation sommaire : une première étape cruciale
Le plan d’implantation sommaire que j’ai proposé permettait de se projeter dans l’espace disponible, tout en prenant en compte la surface totale du local et les besoins spécifiques liés à l’activité. Chaque bureau a été positionné de manière à optimiser l’utilisation de l’espace tout en assurant une circulation fluide entre les différentes pièces.
La salle d’attente, quant à elle, a été placée stratégiquement à l’entrée du cabinet pour offrir un accueil chaleureux et pratique aux patients, tout en respectant les distances et les accès aux bureaux.
Respect des normes PMR : un élément clé
Le respect des normes PMR était un point essentiel dans ce projet. J’ai veillé à ce que chaque bureau et chaque espace du cabinet soit accessible aux personnes à mobilité réduite, avec des couloirs suffisamment larges et des sanitaires conformes. Cette exigence est cruciale pour garantir que le cabinet soit non seulement fonctionnel, mais aussi conforme à la réglementation en vigueur, ce qui est un atout majeur pour l’obtention des autorisations d’exploitation.
Conclusion : un projet viable avant l’achat du local
Ce plan d’implantation sommaire a permis aux futurs acquéreurs de valider la faisabilité de leur projet d’aménagement avant de finaliser l’achat du local commercial. Grâce à cette première étape, ils disposent d’une vision claire de l’agencement possible, ce qui leur permet d’avancer sereinement dans leur démarche.


Si vous envisagez d’aménager un espace professionnel ou un cabinet médical et souhaitez valider sa faisabilité avant l’achat, je suis à votre disposition pour vous accompagner dans cette réflexion et vous proposer des solutions adaptées à vos besoins.
